The video below will show you how to use Smart Layers in Quick View:
Smart Layers in the New Quick View allow users to associate Smart Items with specific locations on a drawing.
All items from various apps pinned on the drawing are displayed, and users can click to navigate directly to the corresponding Smart Item.

Enabling Smart Items:
- Desktop: Smart Items are enabled by default when opening the Quick View interface.
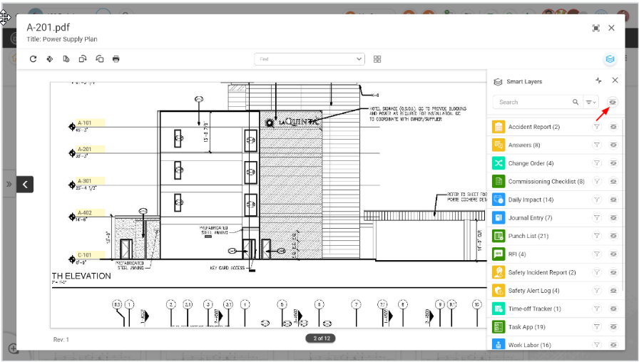
Smart Layers icon is located on the right corner.
Initially OFF, tapping the icon turns it ON, and the icon becomes BLUE.

- Smart Layers Widget: Clicking the Smart Layers icon displays the Smart Layer Widget.
Smart Items are grouped alphabetically by their respective apps in the right pane.
- App Display: Each app displays:
Filter Icon (Off by default)
Visibility Icon (ON by default, to Show/Hide items)
Count of Smart Items pinned to it (shown in braces)
- Smart Item Tile Details: Each Smart Item Tile includes:
Smart Item Name
Item Stage
Created Date and Created By

- Filtering: Clicking the Filter Icon on any app allows users to filter Smart Items.
Standard Filter Pop-up is used (defaulting to Basic View).
App views and Item Security follow Map Mode settings.

- Updating and Clearing Filters: Smart Layers Panel updates based on the filtered result set.
Filter Icon turns blue when enabled.
- On Filter Icon hover, options include:
Clear Filter
Update Filter : Clearing resets to default, and Update allows modifying filter settings.

- Visibility Options: Toggle Eye icon to hide/show items of specific apps.
Master Hide key/icon hides/shows all smart items in Quick View (default ON).

- Hover Details: Hovering over a Smart Item displays details in a hover card.
Clicking the item name opens the Smart Item Details form.
- Search Functionality: Users can search based on App Name, Item Name, and Item Stage.
- Minimizing/Maximizing Right Pane: Right pane can be minimized or maximized using the provided icon.

